Указатель уровня жидкостей фланцевый показывающий судовой из нержавеющей стали
Описание
Плоское смотровое стекло указателя уровня жидкостей, даёт возможность различать уровень жидкостей даже в слабо освещённых помещениях или при аварийном освещении.
Герметичность конструкции указателя уровня обеспечивается за счет размещения стекла в жесткой и прочной колонке из нержавеющей стали.
Самозапорные клапаны, которыми оснащаются наши указатели уровня, обеспечивают полную безопасность использования.
Примерная стоимость указана для модели L=500mm
Основные технические характеристики:
Максимальное рабочее давление: 0.3MPa ( 3 bar )
Проводимые среды : вода, масло
Фланцы : DN20/DN25 PN16 DIN2501
Спецификация материалов указателя уровня
|
№ |
Наименование |
Материал AISI |
Кол-во |
|
4 |
Кронштейн крепления указателя уровня |
нерж.сталь AISI304 |
1 |
|
3 |
Корпус индикатора указателя уровня |
нерж.сталь AISI304 |
1 |
|
2 |
Нижний самозапорный кран |
нерж.сталь AISI304 |
1 |
|
1 |
Фланец(ы) |
нерж.сталь AISI304 |
1 / + |
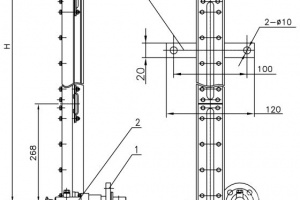
Конструкция нашего указателя уровня разработана таким образом, что позволяет изготавливать колонки уровня длинной до 9000 мм.
Таблица размеров указателя уровня
|
H |
Высота измерений |
Стекло / кол-во |
Кронштейны кол-во |
Фланец по DIN |
|
H=1250 |
H=1226 |
290/3+200/2 |
1 |
DN20 PN16 |
|
H=2200 |
H=2186 |
290/7+200/1 |
2 |
DN20 PN16 |
|
H=1450 |
H=1426 |
290/3+200/3 |
1 |
DN20 PN16 |
|
H=1740 |
H=1716 |
290/6 |
1 |
DN20 PN16 |
|
H=878 |
H=846 |
290/3 |
1 |
DN25 PN16 |
|
H=350 |
H=356 |
290/1 |
0 |
DN25 PN16 |
|
H=350 |
H=356 |
290/1 |
0 |
DN25 PN16 |
|
H=1300 |
H=1246 |
290/3+200/2 |
1 |
DN20 PN16 |
|
H=2500 |
H=2476 |
290/8+200/1 |
2 |
DN20 PN16 |
|
H=2300 |
H=2276 |
290/8 |
2 |
DN20 PN16 |
|
H=3265 |
H=3208 |
290/7+200/6 |
3 |
DN20 PN16 |
|
H=3045 |
H=3008 |
290/7+200/5 |
3 |
DN20 PN16 |
|
H=1935 |
H=1918 |
290/6+200/1 |
2 |
DN20 PN16 |
|
H=2515 |
H=2476 |
290/8+200/1 |
6 |
DN20 PN16 |
|
H=878 |
H=846 |
290/3 |
1 |
DN20 PN16 |
|
H=556 |
H=556 |
200/3 |
1 |
DN20 PN16 |
|
H=2165 |
H=2118 |
290/6+200/2 |
2 |
DN20 PN16 |
Технические характеристики
Похожие товары




