Стекла смотровые фланцевые PN 10 Рис.13-001
Описание
стекла смотровые (на конденсат), PN 10
Проводимая среда: вода морская, пресная, конденсат, топливо, масло.
с фланцами в соотв. с DIN PN 10
стекла стандартные по DIN 8902 до 150° С
укороченные по фланцам
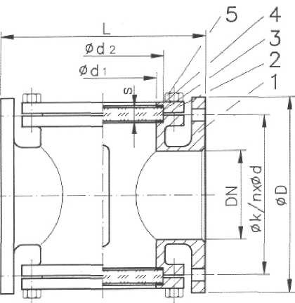
спецификация материалов:
Тип 13-001-1:
корпус: чугун GG-25 0.6025
крышка: чугун GG-25 0.6025
крепеж: сталь 5.6 гальв.
Тип 13-001-2:
корпус: чугун сфер. GGG40 0.7040
крышка: чугун сфер. GGG40 0.7040
крепеж: сталь 5.6 гальв.
Тип 13-001-3:
корпус: бронза RG 5 2.1096
крышка: бронза RG 5 2.1096
крепеж: сталь 5.6 гальв.
|
DN |
L |
d1 |
d2 |
s |
OD |
Ok |
n x Od |
KG |
|
020 |
120 |
40 |
53 |
10 |
105 |
75 |
4x 14 |
3,2 |
|
025 |
130 |
50 |
63 |
10 |
115 |
85 |
4x 14 |
3,4 |
|
032 |
140 |
50 |
63 |
10 |
140 |
100 |
4x 18 |
5,5 |
|
040 |
150 |
60 |
72 |
10 |
150 |
110 |
4x 18 |
7,0 |
|
050 |
160 |
70 |
83 |
12 |
165 |
125 |
4x18 |
8,0 |
|
065 |
180 |
80 |
93 |
12 |
185 |
145 |
4x18 |
12 |
|
080 |
200 |
100 |
113 |
15 |
200 |
160 |
8x 18 |
15 |
|
100 |
230 |
120 |
136 |
15 |
220 |
180 |
8x 18 |
21 |
|
125 |
250 |
150 |
162 |
15 |
250 |
210 |
8x 18 |
27 |
|
150 |
300 |
190 |
203 |
20 |
285 |
240 |
8x22 |
35 |
|
200 |
360 |
245 |
260 |
20 |
340 |
295 |
8x22 |
58 |
|
250 |
420 |
290 |
318 |
25 |
395 |
350 |
12x22 |
88 |
Технические характеристики
Похожие товары





