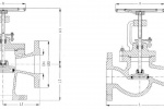
Клапан запорный высокого давления PN 63-160 01-018
Описание
клапаны запорные высокого давления PN 63-160
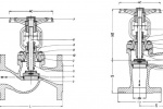
сталь GSC-25
внутренние детали нерж. сталь
размер по фланцам DIN 3202/EN 558
фланцы в соотв. с DIN 2526, Form E (PN 63-160)
допустимое рабочее давление и
температура в соовт. с DIN 2401
Проводимые среды: Пар, вода,масло, воздух и т.д.
спецификация материалов:
корпус: GSC-25 1.0619
крышка: GSC-25 1.0619
седло: нерж. сталь 1.4301
тарелка: нерж. сталь 1.4021
шток: нерж. сталь 1.4021
тип 01-018
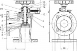
требуется уравновешенная тарелка для рабочих давлений свыше:
|
DN: |
65 |
80 |
100 |
125 |
150 |
|
Bar: |
110 |
64 |
44 |
30 |
21 |
|
DN |
L |
H |
D |
PCD |
отв. |
D |
PCD |
отв. |
KG |
KG |
|
|
|
|
PN63 |
PN63 |
PN63 |
PN100 |
PN 100 |
PN 100 |
PN63 |
PN 100 |
|
|
|
|
|
|
|
PN160 |
PN 160 |
PN 160 |
|
PN 160 |
|
15 |
210 |
260 |
105 |
75 |
4x 14 |
105 |
75 |
4x14 |
10 |
10 |
|
20 |
220 |
285 |
130 |
90 |
4x 18 |
130 |
90 |
4x18 |
16 |
16 |
|
25 |
230 |
300 |
140 |
100 |
4x 18 |
140 |
100 |
4x18 |
18 |
18 |
|
32 |
250 |
325 |
155 |
110 |
4x22 |
155 |
110 |
4x22 |
20 |
20 |
|
40 |
260 |
365 |
170 |
125 |
4x22 |
170 |
125 |
4x22 |
28 |
28 |
|
50 |
300 |
385 |
180 |
135 |
4x22 |
195 |
145 |
4x26 |
32 |
36 |
|
65 |
340 |
415 |
205 |
160 |
8x22 |
220 |
170 |
8x26 |
48 |
70 |
|
80 |
380 |
440 |
215 |
170 |
8x22 |
230 |
180 |
8x26 |
56 |
82 |
|
100 |
430 |
490 |
250 |
200 |
8x26 |
265 |
210 |
8x30 |
86 |
118 |
|
125 |
500 |
550 |
295 |
240 |
8x30 |
315 |
250 |
8x33 |
126 |
160 |
|
150 |
450 |
630 |
345 |
280 |
8x33 |
355 |
290 |
12x33 |
160 |
205 |
Технические характеристики
Похожие товары




