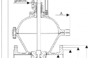
Задвижки клинкетные овальный корпус PN 16 Рис. 05-012
Описание
задвижки клинкетные, овальный корпус, PN 16
Проводимые среды: воздух, вода пресная, вода морская, масло, пар, топливо, газ, кислоты, конденсат.
с внешним,выдвижным штоком
литая сталь GSC-25, DIN 3352-7
сёдла – нерж. сталь
размер по фланцам в соотв. с DIN 3202/EN 558 F5
фланцы в соотв. с DIN PN 16
рабочее давление и
температура в соотв. с DIN 2401
спецификация материалов:
корпус: GSC-25 1.0619
крышка: GSC-25 1.0619
сёдла: нерж. сталь 1.4027
шток: нерж. сталь 1.4021
Данная задвижка доступна также по давлениям и размерам фланцев по DIN PN 25/PN 40
|
NW/DN |
L |
H |
H1 |
D1 |
D2 |
n x d |
D3 |
b |
f |
Dk |
KG |
|
65 |
270 |
410 |
490 |
185 |
145 |
4x18 |
122 |
22 |
3 |
225 |
32 |
|
80 |
280 |
415 |
515 |
200 |
160 |
8x18 |
138 |
24 |
3 |
225 |
35 |
|
100 |
300 |
490 |
610 |
220 |
180 |
8x18 |
158 |
24 |
3 |
250 |
50 |
|
125 |
325 |
590 |
725 |
250 |
210 |
8x18 |
188 |
26 |
3 |
360 |
71 |
|
150 |
350 |
670 |
830 |
285 |
240 |
8x22 |
212 |
28 |
3 |
400 |
94 |
|
200 |
400 |
830 |
1.050 |
340 |
295 |
12x22 |
268 |
30 |
3 |
400 |
137 |
|
250 |
500 |
955 |
1.230 |
405 |
350 |
12x26 |
320 |
32 |
3 |
450 |
231 |
|
300 |
500 |
1.145 |
1.450 |
460 |
400 |
12x26 |
378 |
34 |
4 |
500 |
364 |
|
350 |
550 |
1.210 |
1.635 |
520 |
470 |
16x26 |
438 |
38 |
4 |
500 |
394 |
|
400 |
600 |
1.390 |
1.625 |
580 |
525 |
16x30 |
490 |
40 |
4 |
600 |
560 |
|
500 |
700 |
1.730 |
2.250 |
715 |
650 |
20x33 |
610 |
44 |
4 |
760 |
860 |
Технические характеристики
Похожие товары




