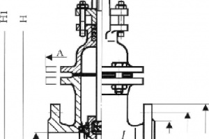
Задвижки клинкетные овальный корпус PN 16 Рис. 05-013
Описание
задвижки клинкетные, овальный корпус, PN 16
Проводимые среды: воздух, вода морская, вода пресная, газ, кислоты, конденсат, масло, пар, топливо.
с внешним,выдвижным штоком
целиком из нерж. стали 1.4408, DIN 3352-10
размер по фланцам в соотв. с DIN 3202/EN 558 F5
фланцы в соотв. с DIN PN 16
рабочее давление и
температура в соотв. с DIN 2401
спецификация материалов:
корпус: нерж. сталь 1.4408
крышка: нерж. сталь 1.4408
сёдла: нерж. сталь 1.4408
шток: нерж. сталь 1.4401
Данная задвижка доступна также по давлениям и размерам фланцев по DIN PN 25/PN 40
|
NW/DN |
L |
H |
H1 |
D1 |
D2 |
n x d |
D3 |
b |
f |
Dk |
KG |
|
40 |
240 |
285 |
340 |
150 |
110 |
4x18 |
88 |
16 |
3 |
160 |
17 |
|
50 |
250 |
290 |
350 |
165 |
125 |
4x18 |
102 |
16 |
3 |
160 |
19 |
|
65 |
270 |
345 |
435 |
185 |
145 |
4x18 |
122 |
16 |
3 |
200 |
28 |
|
80 |
280 |
375 |
470 |
200 |
160 |
8x18 |
138 |
18 |
3 |
200 |
32 |
|
100 |
300 |
445 |
575 |
220 |
180 |
8x18 |
158 |
18 |
3 |
250 |
42 |
|
125 |
325 |
500 |
635 |
250 |
210 |
8x18 |
188 |
20 |
3 |
250 |
54 |
|
150 |
350 |
560 |
765 |
285 |
240 |
8x22 |
212 |
20 |
3 |
315 |
77 |
|
200 |
400 |
730 |
950 |
340 |
295 |
12x22 |
268 |
32 |
3 |
315 |
96 |
|
250 |
500 |
785 |
1160 |
405 |
350 |
12x26 |
320 |
24 |
3 |
315 |
136 |
Технические характеристики
Похожие товары




